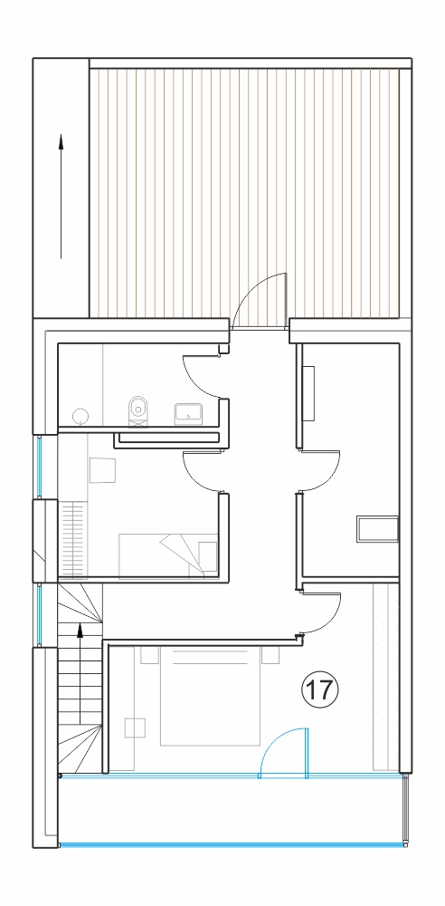
17 butas
Buto informacija
- Statusas Parduotas
- Kambarių skaičius 4
- Bendras plotas 121.11 m2
- Lodžija 10.99 ir 11.02 m2
- Namas Lisabona
- Kryptis Pietūs/Vakarai
Pirmas aukštas
- Holas 5.01 m2
- Vonia 4.06 m2
- Miegamasis 9.35 m2
- Gyvenamasis kambarys su virtuve 23.71 m2
Antras aukštas
- Sandėliukas 8.57 m2
- Koridorius 10.86 m2
- Miegamasis 17.63 m2
- -
- Kambarys 8.83 m2
- Vonia 5.49 m2
- -
- -
- -




