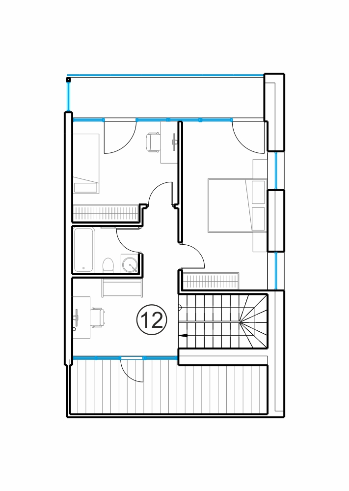
12 butas
Buto informacija
- Statusas Parduotas
- Kambarių skaičius 5
- Bendras plotas 130,54 m2
- Lodžija 9.85 ir 4.23 m2
- Namas Paryžius
- Kryptis Vakarai
Pirmas aukštas
- Holas 8.33 m2
- Vonia 5.64 m2
- Miegamasis 12.44 m2
- Gyvenamasis kambarys su virtuve 36.44 m2
Antras aukštas
- -
- -
- Miegamasis 16.36 m2
- Miegamasis 11.42 m2
- Kambarys 12.38 m2
- Vonia 3.58 m2
- Lodžija 9.85 m2
- -
- -




